Engineering
Con il servizio di Ingegneria Integrata proponiamo ai nostri Clienti un supporto completo nel problem solving: dall’individuazione delle esigenze alla concezione delle soluzioni, dalla progettazione alla direzione lavori, fino al coordinamento delle forniture e alla messa in funzione degli impianti; il tutto riferito sia ai progetti impiantistici e produttivi e sia a quelli organizzativi.
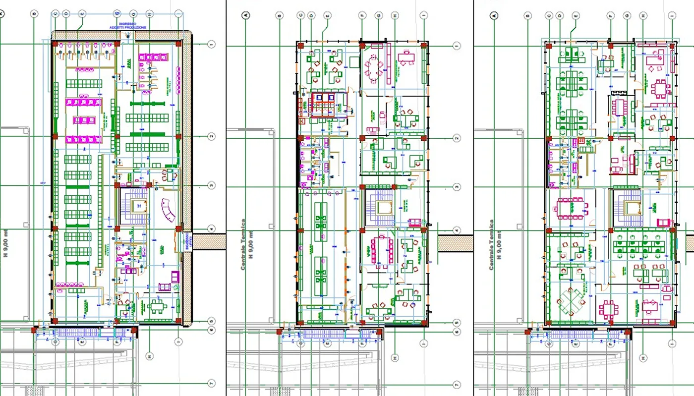
Alla base della nostra attività c’è un approccio progettuale, costruttivo e gestionale improntato e basato sui temi di congruenza, affidabilità e condivisione interdisciplinare immediata delle informazioni; questo avviene anche grazie all’utilizzo di strumenti come il BIM (Building Information Modeling) e la modellazione 3D, utili sia per la progettazione concettuale che per la realizzazione di rappresentazioni fotorealistiche.
Con la nostra progettazione
abbiamo gestito cantieri in tutta Italia,generando un indotto complessivo di
500 milioni €
Il nostro obiettivo nellʼutilizzare la tecnologia progettuale BIM è quello di: trasformare i dati che ogni partner di progetto possiede o crea, in “Informazione di progetto”, assicurando sianche che tutti gli utenti della costruzione possano avere facile accesso a quelle informazioni. Il software BIM riesce a risolvere, con relativa semplicità, ma soprattutto con sicurezzae precisione, moltissimi aspetti geometrici spaziali, altrimenti di difficile approccio in bidimensionale. Il team utilizza sofware di modellazione e progettazione quali Autodesk Revit Mep e Design Builder.
Tutti i servizi
Progettazione architettonica
Soluzioni architettoniche innovative e sostenibili, pensate per integrare l’impiantistica energetica con il contesto urbanistico e paesaggistico. Ogni progetto è studiato per valorizzare gli spazi e ottimizzare l’efficienza energetica.
Progettazione M.E.P.
Progettazione integrata di impianti meccanici, elettrici e idraulici ad alta efficienza, con particolare attenzione ai sistemi energetici rinnovabili e alla compatibilità con i requisiti degli edifici moderni e innovativi.
Fire Engineering
Analisi e progettazione sistemi di prevenzione incendi per edifici civili e industriali, con approccio prestazionale e conforme alle normative vigenti. Garantiamo sicurezza antincendio integrata agli impianti fotovoltaici e alle infrastrutture tecnologiche.
Project Management e Direzione Lavori
Coordinamento completo delle fasi di progettazione e realizzazione, con gestione efficiente di tempi, costi e qualità. Supervisione diretta delle attività in cantiere, fino alla consegna dell’opera completata.
MW di impianti
fotovoltaici installati
Cantieri aperti e chiusi in
Italia
Edifici riqualificati
energicamente
Studio Ekó offre servizi di ingegneria avanzata dedicati alla progettazione integrata di edifici destinati al settore commerciale e industriale. Il nostro approccio combina competenze multidisciplinari in ambito strutturale, impiantistico ed energetico per sviluppare soluzioni architettoniche efficienti, sicure e pienamente rispondenti ai requisiti tecnici dei clienti C&I. Seguiamo ogni fase progettuale, dall’analisi preliminare alla definizione dei modelli ingegneristici, fino al coordinamento tecnico delle opere, garantendo elevate prestazioni, ottimizzazione dei consumi e continuità operativa. Grazie a un metodo basato sulla collaborazione tra le varie discipline, Studio Ekó realizza progetti integrati per edifici produttivi, logistiche, spazi commerciali e strutture complesse, valorizzando sostenibilità, qualità costruttiva e affidabilità nel tempo.